DIY crib: a master class with drawings and photos
It is important for parents that their children grow up in a comfortable atmosphere and that their sleep is not in danger. If a person has a minimal set of tools and basic knowledge, then do-it-yourself baby bed it will be quite easy to do, provided that there is at hand a photoproduct sketch blueprints. The arrangement of such furniture is simple.

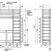
The scheme and dimensions of the crib for a newborn
Parents know that a crib for a baby, especially from the age of one to four, is especially important because the baby sleeps a lot. Proper furniture is the key to a comfortable sleep. For small apartments, such a bed in the nursery can replace the playpen.
It is easy to do it in two to three days and provide for all the subtleties and nuances for the comfort of the child.

Proper furniture is the key to a comfortable sleep
Content
Baby Crib Elements
The first step is to figure out what elements this structure will consist of.
- Mattress. It is selected based on the weight and age of the baby, therefore it is better not to do it yourself, but simply to purchase it in a store. The purchased mattress was developed together with orthopedists and takes into account all the needs of the body for a comfortable sleep and the proper formation of the children's spine. Mattresses are divided into two main types: on the spring block and without springs. A type with springs can be on an independent spring block (each spring is placed in a separate bag of nonwoven material and the load on such a mattress is distributed pointwise) and on a dependent spring block (the springs are joined by a metal frame, and the sleeping weight is distributed evenly over the entire area of the product).

Comfortable hanging baby crib
Such mattresses are best purchased for children from 5 years. And for children with low weight, products on a springless block are recommended, where the frame itself, as a rule, consists of polyurethane foam or foam rubber and can be supplemented with coconut coir or other materials depending on the degree of rigidity.
- Wireframe. This element is made based on the size assumed by the bed mattress. The material for him most often is a planed board.
- Lamels. These parts of the product are designed to support the mattress from below and are planks inserted into the furniture frame. They form a lattice with a distance between each other of about 5 cm (for ventilation of the mattress).

Making a crib with your own hands a master class with drawings and photos
- Sidewalls. They are a fence so that the child does not fall from the crib. Depending on the wishes of the parent, they can be high or low, solid or carved. Pollen (back of the product). At the head, their height will be higher than at the feet.

Drawings and photos of the crib for the master class
- Legs. This item can be made by yourself or purchased at a specialized furniture hardware store. They can be originally planed on the sides of the crib, and can be screwed to it.

Crib drawing
Decide on a model
In the children's room most often use several varieties of beds:
- With drawers
- Loft bed
- Bunk bed (if there are two babies in the room)
If the room of the children's room does not allow you to put a large bed in the room, and you need a compact model that can save square meters, then it is better to choose a design with drawers. Boxes are used to store bedding, toys, children's things and everything that does not fit in a child’s chest or drawers.

Crib in two levels for small children
Making a crib with drawers
In order for the furniture to turn out to be of high quality, it is necessary to select environmentally friendly materials for its manufacture. The ideal material would be thick plywood or wood. It is not worth buying MDF or chipboard popular in the furniture industry for the manufacture of structures because of the adhesives used in the manufacture of materials. Chemicals can adversely affect the baby's body, causing allergies.

Original bed for a stylish interior of a children's room
Tip: It is not recommended to make a bed smaller than 1.5 * 0.6 meters, but you should not make it huge more than 1.8 * 0.7 meters. A child will quickly grow out of a small crib, and if you make it too large, the baby will not feel comfortable in it.
The basis for such furniture is made solid, it can be purchased ready-made, or you can simply use a sheet of plywood instead.
Its dimensions should be based on the size of the acquired mattress. A grill can be purchased as a base, but as an option, plywood can be used, since the children's weight is not so large.

The ideal material would be thick plywood or wood.
Materials
Shield made of wood. It is better to use wood with a low resin content, such as birch, linden. The size of the shield is recommended to be taken two meters long, 60 centimeters wide and about 3 centimeters thick.
- Plywood sheet
- Aluminum corners for mounting
- Screws
- Fasteners
- Castors for furniture and drawers with a diameter of 45 mm.
- To assemble the workpiece, special couplers and a drill are needed.

Mobile crib for a newborn
On the furniture panel, the future contour of the workpiece is drawn with chalk in sketch sizes. If it is necessary to make holes on the sides of the structure, then they are drawn by applying a champagne glass or using an ordinary glass.
The furniture board and plywood can be cut by buying in a store. As a rule, in most stores there are such services, but it is necessary to provide sizes in millimeters and patterns. It is recommended to make a cut on your own with an electric jigsaw, but if there is no jigsaw at hand, you can saw materials with a regular saw.

The furniture board and plywood can be cut by buying in a store.
After sawing all the wood elements are sanded with sandpaper so that the materials from which the bed is made do not scratch the baby’s delicate skin.
Tip: When cutting wood, it is recommended to seal the place of cut with adhesive tape made of paper so that its fibers do not start sticking out and bullying.
If it was not possible to find corners from aluminum, then they are cut from an aluminum profile. Details of the bed should correspond to the sketch drawings. And the length of the corner from the profile should coincide with the length of the side back of the furniture. Holes are made on these fasteners for screwing in self-tapping screws. Sidewalls are attached corners to the bed lattice or plywood base, and this design is tightened with eight screws.

Original children's bed in the form of a car for a boy
Initially, the parts are fixed on one side, then the future workpiece is turned on the side. According to the scheme, from time to time, check the order of fastening of elements and the location of parts. To make the product stable and strong, watch out for distortions and displacements of parts relative to each other. The blood walls are attached to each other and are pulled together; if there are no holes in the walls, they are made using a drill.

Tree
The frame part of the product is ready, it is time to collect the back, which will be located above the child’s head. If desired, it can be made of any shape, the main thing is that this piece of furniture fully performs its function, that is, protects the baby from injuries.

Carved wooden crib for a newborn baby
Very often, small children raise their heads in a dream, so the sides should be at least 10 centimeters high. Another advantage of the high sides and the headboard is the prevention of throwing toys and bedding from the bed.

Original crib for a boy
We make the headboard: we take a furniture panel, from it, if you wish, you can make a carved back that looks beautiful and noble or decorates. The design of the head and back in the legs should match so that the design looks organically.

We make the headboard: we take a furniture panel, from it, if you wish, you can make a carved back that looks beautiful and noble or decorates.
We fasten the legs to the bed body itself, which we purchase in the furniture hardware store. We do this with long screws.

Drawing of a two-level children's bed for a bedroom
All elements of the bed body are additionally carefully polished, up to cuts and cuts, so that the child, putting his fingers in the slot, does not get hurt.
Tip: A smooth polished surface will be obtained using a drill with a nozzle or a grinding machine.
Baby crib in the shape of a cradle for the baby
Decorated polished backs are attached to the frame frame. So that the mounts were not visible, they are drilled from below, pointing up the drill. Cutting holes should be as accurate as possible, because this part is easy to damage. We make the hole for the screed ourselves, it will be difficult to make it with a drill in this place. If the wood for making the crib is soft, then the hole will easily break through.

So that the mounts were not visible, they are drilled from below, pointing the drill up
The configuration of the crib suggests that the storage boxes are not attached to the bed frame, but have the form of roll-out stands. The boxes should be supplemented with wheels so that the storage container rolls out.

Stylish crib made of wood for the baby
If the landlord decided to change the configuration of the crib so that the drawers extend, then a transverse rail is attached to the bottom of the workpiece, and the product itself will stand on the side slats. In this case, the sidewalls are made higher than previously planned by several centimeters equal to the height of the drawers. The drawer itself (box) is placed on the rails.

Wooden crib for a bright and spacious room
For boxes we take plywood with a thickness of 1.2 cm, cut out the bottom and walls of the box, tighten together with screws. Additionally, the box is glued, because the things in the box carry the load on the structure. We attach the wheels at the bottom of the assembled box.

Bright spacious room with a crib
The legs on the bed, if you decide to make them yourself, are made from the remnants of a furniture board or from scraps of square-shaped timber. Fasten the legs to the furniture frame with screws.

For boxes we take plywood with a thickness of 1.2 cm, cut out the bottom and walls of the box, tighten together with screws.
Bed decoration
When the work is finished, it is recommended to give the product a finished look. It is recommended to go with an upholstery fabric for furniture. Preliminarily, details are cut from the fabric 2-3 cm more than the main parts and pass overlock so that they do not crumble. The fabric is fastened with a furniture stapler, and its sections are hidden inside the crib so as not to spoil the aesthetic appearance of the structure. During decoration, the fabric is stretched so that no creases, folds and bubbles appear.

Baby crib for the smallest family member and small bedroom
Another option for finishing will be varnishing of the frame of the crib, headboard, back in the legs.To do this, it is recommended to use quick-drying water-based varnishes. More environmentally friendly for furniture in the nursery will be treated with stain. Previously, it is recommended to sand and polish all the details with a drill with a nozzle.

Wooden crib for newborn baby
For the decorative appearance of the drawers, their facades are made of bright panels of MDF or LDPS of blue, pink, light yellow, lilac and other colors.
DIY bunk bed




















































