Conception de la salle 3 en 1: aménagement de la salle à manger cuisine avec exemples de photo
La combinaison de plusieurs zones fonctionnelles dans la pièce est une technique de conception courante. Se débarrasser des partitions de séparation vous permet d’agrandir l’espace et de choisir la solution de style d’origine. Cuisine salle à manger dans une pièce mise en page photo arrive différent. Ce peut être à la fois un nid douillet de style provençal et une salle spacieuse et minimaliste. Un aménagement réussi des meubles contribuera à créer une sensation d’espace et rendra chaque section confortable.

Cuisine salle à manger salon dans une chambre la disposition de la photo est différente
Contenu
- 0.1 Concept de chambre
- 0.2 Style intérieur
- 0.3 Couleurs - mettre l'ambiance
- 0.4 Plancher
- 0.5 Décoration de la fenêtre
- 0.6 Eclairage - le visage de la maison
- 0.7 Des astuces secrètes en design d'intérieur
- 0.8 Tellement différentes partitions
- 0.9 Zonage et augmentation visuelle de l'espace
- 0.10 Portes de guidage
- 0.11 Affiches et peintures
- 1 Cuisine, salle à manger, salon - design moderne
Concept de chambre
La chambre trois en un sert de lieu de repos. Ici, ils mangent et cuisinent des aliments, communiquent et, dans certains cas, travaillent même. Combiner ces trois pièces n'est pas facile. En même temps, un salon spacieux, remplissant plusieurs fonctions, peut sembler plus confortable que deux ou trois petites pièces.

Pièce à séparation de zonage d'espace pour la cuisine de la salle à manger et du salon
Il y a des situations où les partitions doivent être démolies et élargir l'espace. Et parfois, la disposition de l'appartement prévoit de combiner plusieurs zones dans une même pièce. La plupart des gens relient le salon à la salle à manger, en plaçant une table à manger en face du canapé et le set de cuisine dans le coin libre, ceci achève la rénovation.

Idée de chambre Cuisine 3 en 1 Salon Salle à manger
Les solutions standard se démodent rapidement. Les designers des pages de magazines parlent de zonage, de construction de cloisons complexes et de placement de miroirs. Mais la mise en œuvre de ces recommandations n’est pas toujours claire, vivre dans un petit appartement et non dans un grand hôtel particulier.

La plupart des gens relient le salon à la salle à manger, en plaçant une table à manger en face du canapé et le set de cuisine dans le coin libre, ceci achève la rénovation.
Style intérieur
Pour commencer, dessinez un plan de la pièce sur une feuille de papier et calculez la quantité de mobilier requise. Pour une grande famille, vous aurez besoin de nombreuses chaises. Les fans de cuisines de restaurants peuvent se débrouiller avec un ensemble compact. Dans certains cas, un canapé spacieux est tout simplement nécessaire. En sachant combien de temps les meubles vont occuper, vous saurez comment y remédier.

Grande chambre élégante avec salle à manger et salon séparés
Des conseils pratiques de décorateur vous aideront. Rappelez-vous que la cuisine de la salle à manger du salon doit être faite dans un style simple. Si vous aimez les antiquités en tant qu'objet de luxe, cela ne devrait pas être trop. Laissez de l'espace libre afin que la pièce ne soit pas encombrée et bien éclairée.

Chambre de partage originale avec décor jaune vif
Choisissez la conception de la pièce en fonction de vos préférences personnelles. Le design moderne est idéal pour les petits appartements. Il n'a pas de détails de pondération et vous pouvez toujours choisir des meubles économiques dans le style hi-tech ou moderne.

Le design moderne est idéal pour les petits appartements.
Couleurs - mettre l'ambiance
Le choix du style commence par le choix des couleurs qui dominent l’intérieur. Il est souhaitable que la couleur principale soit le blanc ou une de ses nuances. Vous pouvez diluer la palette de couleurs neutres en ajoutant des détails clairs. Le blanc est combiné à des couleurs saturées - vert ou rouge.

Design strict et élégant pour une chambre 3 en 1
En dépit de l'espace restreint, il est possible de réaliser des jeux de couleurs intéressants. Un papier peint ou un papier peint photo insolite met l’accent sur les sections importantes sur lesquelles vous souhaitez attirer l’attention. Un panneau décoratif mettra en valeur un lieu pour déjeuner ou un espace de détente.
Plancher

Lumineux et élégant 3 en 1 chambre avec un décor lumineux
Dans une salle multifonctionnelle, le revêtement de sol est l’une des tâches principales. Une solution intéressante pour les pièces avec de hauts plafonds est un étage sur deux niveaux. Sur une petite tribune, une table, des chaises, un canapé, un canapé, une télévision. C'est une île confortable, séparée de la cuisine. Ci-dessous, le lieu de travail de la femme au foyer, où elle se procure des rafraîchissements.

Il est souhaitable que la couleur principale soit le blanc ou une de ses nuances.
Vous pouvez également élever la cuisine à une altitude élevée, puis les invités viendront observer avec intérêt la préparation de délicieux plats aromatiques. La table de la cuisine deviendra une scène impromptue où se dérouleront la création de chefs-d’œuvre culinaires.
Décoration de la fenêtre
Vous voulez toujours la lumière du soleil dans la pièce. Par conséquent, les décorateurs refusent les murs aveugles, ce qui fait de la zone clôturée un espace sombre et étroit. Laissez la lumière des fenêtres pénétrer librement. Placez les meubles de sorte que chaque section puisse au moins parfois pénétrer dans les rayons du soleil.

Conception d'une pièce avec plusieurs zones de travail pour le salon et la salle à manger
Les rideaux soulignent les vertus d'une ouverture de fenêtre. Si vous vivez dans une ville et que votre fenêtre offre une vue peu esthétique du chantier de construction ou du mur d'une maison voisine, procurez-vous des textiles avec impression photo. Les technologies modernes vous permettent de transférer l'image sur le tissu avec une précision maximale. Un paysage d'été idyllique ou des motifs floraux sont idéaux.

Si vous vivez dans une ville et que votre fenêtre offre une vue peu esthétique du chantier de construction ou du mur d'une maison voisine, sélectionnez des textiles avec impression photo.
Ne vous laissez pas emporter par les couleurs sombres lors du choix des rideaux. L'option classique pour une pièce de toute taille consiste en de fins rideaux blancs qui atteignent le sol. Avec eux, la pièce semble lumineuse et une palette de couleurs neutres vous permet de combiner des rideaux avec n'importe quel design de pièce.
Eclairage - le visage de la maison

Pièce avec un grand espace pour la cuisine du salon et de la salle à manger
Les lampes peuvent changer fondamentalement la sensation d'espace. Plus la pièce est lumineuse, plus elle semble spacieuse. Mais la lumière directionnelle est fatigante, cela peut faire mal aux yeux. Il est recommandé de placer des sources lumineuses puissantes au-dessus des tables et des comptoirs de la cuisine. Près des canapés et des fauteuils, il est préférable d’installer des appliques murales offrant une lumière douce.
Astuce Si une section passe en douceur à une autre, vous pouvez l'indiquer à l'aide du rétroéclairage LED. Par exemple, le contour lumineux d'un plafond tendu peut chevaucher l'éclairage des façades d'armoires de cuisine.

Plus la pièce est lumineuse, plus elle semble spacieuse.
Des astuces secrètes en design d'intérieur
- Pour masquer un ensemble de cuisine, choisissez un meuble en fonction de la couleur des murs ou, au contraire, repeignez les murs pour les assortir au mobilier. Ensuite, les invités séjournant dans le salon ne feront pas attention à vos ustensiles de cuisine. Il existe une autre option: choisir des meubles pour la cuisine, en combinant avec style des armoires pour la pièce. Il n'y aura alors aucune transition notable de la partie utilitaire de la pièce vers l'avant.

Design moderne et élégant d'une grande pièce avec plusieurs zones de travail
- Une autre astuce consiste à cacher la cuisine dans un placard en installant des portes coulissantes. À tout moment, vous pouvez déplacer les feuilles et accéder à l'évier ou au poêle. Si vous placez les portes à une certaine distance des armoires, vous obtenez une petite pièce.
- Vous pouvez créer un paysage magnifique avec vos propres mains, et même avec le contre-jour. Au bas, au niveau des pieds des armoires, un ruban adhésif est monté, et les façades des meubles sont collées avec du papier peint photo pour les meubles. Cette technique simple étend visuellement l'espace et le paysage semble être une continuation de la pièce.

L'idée d'une pièce 3 en 1 avec un salon cuisine et salle à manger dans un espace
- Si vous ne souhaitez pas installer une partition en briques, remplacez-la par un rideau, un écran ou un mur portable. Il n’est pas difficile de réorganiser une telle barrière visuelle vers un autre endroit ou de l’enlever quand elle est ennuyeuse.
- Une petite cuisine pour ceux qui cuisinent rarement. Dans ce cas, tous les accessoires iront dans une petite table de chevet, qui peut être recouverte d’une serviette de table assortie au mobilier à l’arrivée des invités. Si vous cuisinez rarement et préférez commander des plats tout préparés, cette option vous convient.

Chambre design 3 en 1 dans des couleurs vives avec un décor lumineux
Astuce Pour économiser un espace précieux, remplacez la porte battante classique par un modèle coulissant ou pliant. L'espace libéré peut être occupé par une table de chevet ou une armoire de coin.
Tellement différentes partitions
Parfois, des poutres de support et d'autres pièces restent de l'ancienne partition. Prenez votre temps pour détruire les éléments de structure obsolètes, utilisez-les pour indiquer les limites entre les sections. Si vous avez une pièce ordinaire, il n'est pas difficile de lui donner une atmosphère de mystère avec des colonnes ou des structures de plafond. Les colonnes alignées sépareront la table à manger du canapé et de la table basse. Dans ce cas, la lumière du soleil passera entre les éléments structurels.

Si vous avez une pièce ordinaire, il n'est pas difficile de lui donner une atmosphère de mystère avec des colonnes ou des structures de plafond
Les plantes sont des assistants fidèles au concepteur qui participent au zonage de la pièce. Une plante ampeleuse grimpante peut être placée sur un tas de choses ou faire partie d’une partition solide. Un tel mur végétalisé deviendra un élément naturel et lumineux, donnant de la légèreté à l’intérieur. Au lieu de plantes, vous pouvez installer un aquarium avec du poisson ou une fontaine décorative.

Chambre moderne 3 en 1 salle à manger salon cuisine
Informations utiles Les magasins spécialisés vendent des foyers électriques dans lesquels le feu peut être envisagé de plusieurs côtés. La cheminée divisera l'espace et deviendra un accent brillant.
Idée d'intérieur tendance 3 en 1
Zonage et augmentation visuelle de l'espace
En ce qui concerne les miroirs, rappelez-vous qu’il est logique de les installer dans la salle à manger ou dans le salon. Dans la cuisine, la surface du miroir peut se briser, la graisse et la suie vont s'y déposer. Il n'est pas nécessaire d'acheter un miroir mural. La meilleure option est un modèle dont la largeur est inférieure à un mètre.

Élégante salle multifonctionnelle avec espaces pour cuisine, salon et salle à manger
Le verre réfléchit la lumière, alors que c'est une barrière visuelle. Après avoir placé une cloison en verre, vous divisez la pièce en zones sans alourdir la pièce. De plus, vous pouvez installer des armoires transparentes et une porte vitrée.

Pour la pièce où la cuisine est séparée de la zone de loisirs, il est nécessaire de choisir une solution de style commun et plusieurs teintes contrastées.
Pour la pièce où la cuisine est séparée de la zone de loisirs, il est nécessaire de choisir une solution de style commun et plusieurs teintes contrastées. Le salon peut être fait dans le style baroque ou victorien, rempli de meubles avec des sculptures et des peintures antiques. Et la cuisine sera lumineuse, avant-gardiste, avec des façades laquées et des surfaces métallisées.

Grande pièce lumineuse avec cuisine combinée, salle à manger et salon
Portes de guidage
Les salles minimalistes sont souvent réalisées dans un style japonais. Il se caractérise par l'absence de murailles majeures, remplacées par des cloisons mobiles. Vous pouvez installer des guides de porte dans la pièce. Ensuite, à tout moment, il sera possible de se retirer en fermant les ailes et de combiner rapidement les deux parties de la pièce.

Scheme
Affiches et peintures
La partition peut être remplacée par une grande bannière avec une image lumineuse. Désigne maintenant l'installation de bannières à des prix abordables. L'avantage de la bannière est qu'elle est facile à assembler, à placer à l'endroit choisi, puis à l'enlever. Dès que vous souhaitez modifier l'intrigue représentée sur l'affiche, remplacez-la simplement par une nouvelle. Les affiches en toile sont fabriquées en matériaux synthétiques, en papier ou en tissu.

Combinant la cuisine salle à manger et salon dans une seule pièce
Les avantages d’une salle commune sont qu’il n’est pas nécessaire d’aller loin pour apporter un repas aux clients. Tous les éléments nécessaires sont à portée de main. Le porridge et les crêpes ne brûleront pas si vous regardez votre série préférée. Vous pourrez communiquer et garder un œil sur la cuisine.
Cuisine, salle à manger, salon - design moderne
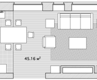
Disposition de la salle à manger de la cuisine 41 idée photo:























































